2-Bedroom Tiny House Interior: Ideas, Space & Design
The interior of a 2-bedroom tiny house is where smart design meets everyday reality. Most people assume two bedrooms mean two full-sized rooms, but that’s not true.
In a space ranging from 200 to 600 square feet, every decision matters.
From where the bedrooms sit to how the kitchen is laid out, each choice affects your privacy, comfort, and budget. The layout you pick determines how livable the space actually feels day to day.
Here you’ll find practical layout ideas, key design features, budget factors, and the honest trade-offs that come with fitting two bedrooms into a tiny footprint.
Key Features of a Well-Designed Tiny House Interior
A functional 2-bedroom tiny house interior doesn’t happen by accident. These are the core features that separate a well-designed space from one that just doesn’t work.
- Purposeful zoning: Every zone has a defined role, no dead space, no wasted corners going unused.
- Strategic bedroom placement: Bedrooms sit at the edges or above to maximize privacy and keep the daily flow smooth.
- Flexible living areas: Shared spaces pull double duty, reducing the need for extra rooms in a tight footprint.
- Integrated storage: Built-in storage within stairs, walls, and beds directly determines how livable the space feels.
- Natural light design: Large windows and skylights make the interior feel open and far larger than its actual size.
Get these five things right, and the rest of the design falls into place naturally. Miss even one and the whole interior starts to feel like a compromise.
Practical 2 Bedroom Tiny House Interior Layout
There’s no single right way to design a 2-bedroom tiny house interior. The best layout depends on who’s living there and how they use the space.
Here are practical ideas worth considering:
Side-by-Side Bedroom Layout

Both bedrooms sit on the same floor, placed next to each other with a shared wall. It’s one of the simplest ways to zone a tiny house without going vertical.
This layout works especially well for families with young kids who need to stay close but still have separate sleeping spaces.
The trade-off is floor space. Placing two bedrooms side by side on the ground level leaves less room for the kitchen and living area.
Opposite-End Bedroom Layout

One bedroom anchors each end of the tiny house, with the kitchen, bathroom, and living area filling the middle.
This natural separation reduces noise transfer and gives each occupant a more private sleeping zone.
It’s one of the better layouts for two adults sharing a space. The distance between bedrooms creates a buffer that makes daily life noticeably more comfortable.
Dual Loft Bedrooms

Both bedrooms are elevated above the main floor, one at each end. The entire ground level opens up for living, dining, and bathroom use.
For those who prioritize a spacious communal area, this layout delivers.
The trade-off is comfort. Both lofts will have reduced headroom, and sound travels easily between them if the middle section is open.
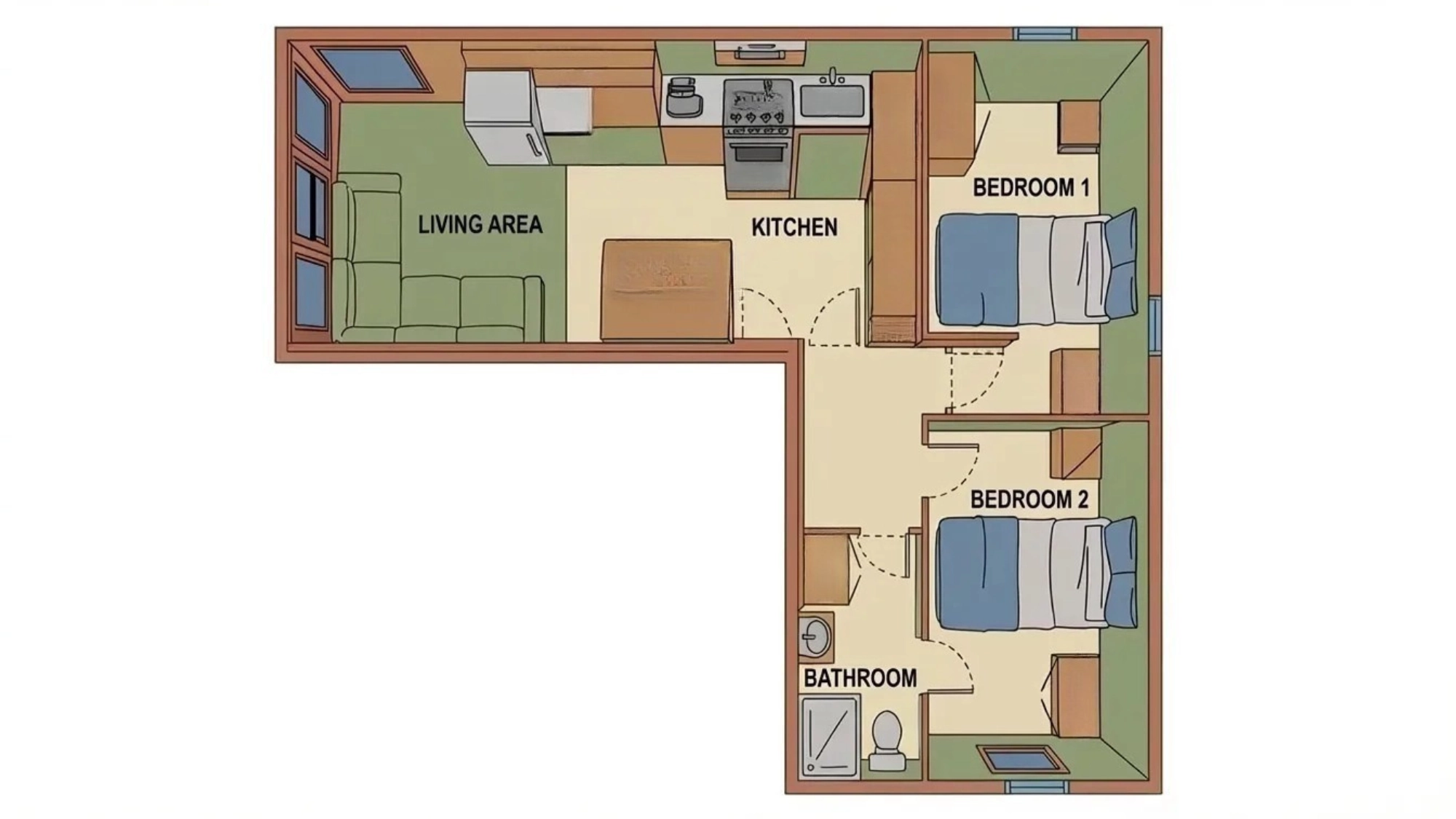
L-Shaped Layout

The interior is arranged in an L-shape, naturally dividing private sleeping areas from shared living spaces.
The bend in the layout creates a visual and physical boundary without needing extra walls or partitions.
This layout also helps with light distribution. Windows placed at the ends of each arm of the L allow natural light to reach more of the interior throughout the day.
Open Plan with Loft Bedroom

One bedroom is elevated in a loft, while the other is at ground level, but the rest of the interior remains open and unpartitioned.
The result is a space that feels larger and more breathable than a heavily divided layout.
It works best for couples or small families who don’t need strict separation between their living and sleeping zones. The openness makes the interior feel far more comfortable day to day.
Porch-Extended Layout

A covered outdoor porch or deck is built as a direct extension of the interior living space.
When the weather allows, the porch takes on the role of a dining area, lounge, or workspace, reducing pressure on the indoor square footage.
This layout is especially useful when the interior feels too tight.
Moving some daily activities outside makes the whole home feel significantly less crowded without adding a single square foot inside.
U-Shaped Layout with Central Space

The interior wraps around a central open area, with the kitchen, living space, and bedrooms arranged along three sides.
This creates better airflow and gives the interior a more open, breathable feel.
The constraint is land. A U-shaped layout requires more width or lot flexibility than a standard rectangular tiny house build, which can limit where it can be placed or parked.
Mezzanine Bedroom Concept

Instead of a full loft, a mezzanine is a partial upper level that doesn’t span the entire home.
It sits between the ground floor and a full second story, offering a sleeping area with slightly better headroom than a standard loft.
It strikes a balance between accessibility and space-saving.
The partial elevation keeps the space feeling open below while still getting two sleeping areas into a compact footprint.
Modular Expandable Layout

The home starts as a single compact unit and is designed from the beginning to expand later.
A second bedroom module can be added when needed, keeping initial costs low without locking the owner into a fixed floor plan. The flexibility is real, but so is the planning required.
The expansion has to be designed in from the start, retrofitting a modular addition onto a home not built for it is significantly more complicated and expensive.
Budget Factors Linked to Interior Layout and Design
Design decisions don’t just affect how a tiny house looks, they directly impact what it costs to build.
| Factor | Lower Cost | Higher Cost |
|---|---|---|
| Layout Complexity | Simple rectangular layouts with straight walls | Angled walls and irregular shapes increase labor costs |
| Vertical vs Wide Design | Tall loft buildings keep the ground footprint small | Wider designs need more materials and larger lots |
| Custom Built-Ins | Standard furniture and minimal customization | Full built-ins and custom cabinetry cost more upfront |
| Utility Placement | Kitchen and bathroom clustered to minimize plumbing | Spread-out plumbing raises installation costs |
| Hidden Costs | Standard fittings and off-the-shelf appliances | Specialty fittings and compact appliances carry a premium |
A smaller home doesn’t automatically mean a cheaper one. Every design choice has a price, and the more complex the interior, the higher that price tends to be.
Common Design Mistakes Tiny House Interiors
Even well-intentioned tiny house designs can go wrong fast. These are the mistakes that show up most often, and make daily life harder than it needs to be.
- Blocking windows with poor furniture placement cuts off natural light, making small spaces feel darker.
- Misjudging loft clearance is common, builders often design for looks, not for how the space actually feels.
- Pinterest-inspired designs look stunning in photos, but often ignore the practical realities of daily tiny-house living.
Conclusion
A well-designed 2-bedroom tiny house interior is proof that square footage isn’t everything.
The right layout, smart storage, and intentional zoning can make a compact space feel genuinely comfortable.
Whether you’re drawn to a loft setup, a container build, or a modular design that grows with you, the key is matching the layout to how you actually live.
Budget matters too, and as this guide shows, design complexity always comes with a cost.
The concept is simple: when your layout matches your lifestyle, a 2-bedroom tiny house interior stops feeling like a compromise and becomes a choice.
Comment down below and tell us which layout idea stood out to you the most.
Frequently Asked Questions
How Long Does It Take to Build a 2 Bedroom Tiny House?
Build time ranges from 3 to 6 months for custom builds and 4 to 12 weeks for factory models. Timeline depends on design complexity and permit approvals. DIY builds typically take 6 to 12 months, depending on experience.
Do 2 Bedroom Tiny Houses Require Special Permits?
Yes, in most areas. Requirements vary by location, build type, and whether the foundation is vs wheels. Some counties have specific zoning laws for tiny houses. Always check local building codes before starting to avoid costly delays or legal complications.
Can a 2 Bedroom Tiny House Be Used as a Rental Property?
Yes. Many owners use them as short-term vacation rentals or long-term stays. Viability depends on local zoning and platform rules. A well-designed layout with good privacy and storage consistently performs better as a rental property.