ada bathroom layout,ada bathroom,ada restroom

ADA Bathroom Layout: Compliance Made Easy

Designing a bathroom that works for everyone can seem tricky. I’ve definitely felt that way before, but it doesn’t have to be overwhelming.

If you’re wondering how to make your space feel safe, welcoming, and up to code, learning the ADA guidelines is a smart first step.

In this blog, I’ll walk you through everything you need to know, including door widths, sink heights, grab bars, clear floor space, and more.

You’ll pick up practical advice, avoid common mistakes, and make choices that help everyone feel more comfortable.

By the end, you’ll know how to design a space that’s not only ADA-compliant but truly inclusive. Let’s get into the ADA bathroom layout tips that really make a difference.

Why ADA Bathroom Requirements Matter

ADA bathroom requirements ensure that everyone can use restrooms safely and comfortably, regardless of their physical abilities.

These rules protect people who use wheelchairs, walkers, or have other mobility challenges from discrimination.

Businesses that follow ADA guidelines avoid costly lawsuits and create welcoming spaces for all customers.

Proper bathroom design helps elderly visitors, parents with strollers, and people recovering from injuries, too.

ADA compliance isn’t just about following the law; it’s about treating everyone with dignity and respect.

When you design accessible bathrooms, you’re building a more inclusive community where everyone feels valued and respected.

These requirements also increase your property value and attract more customers to your business.

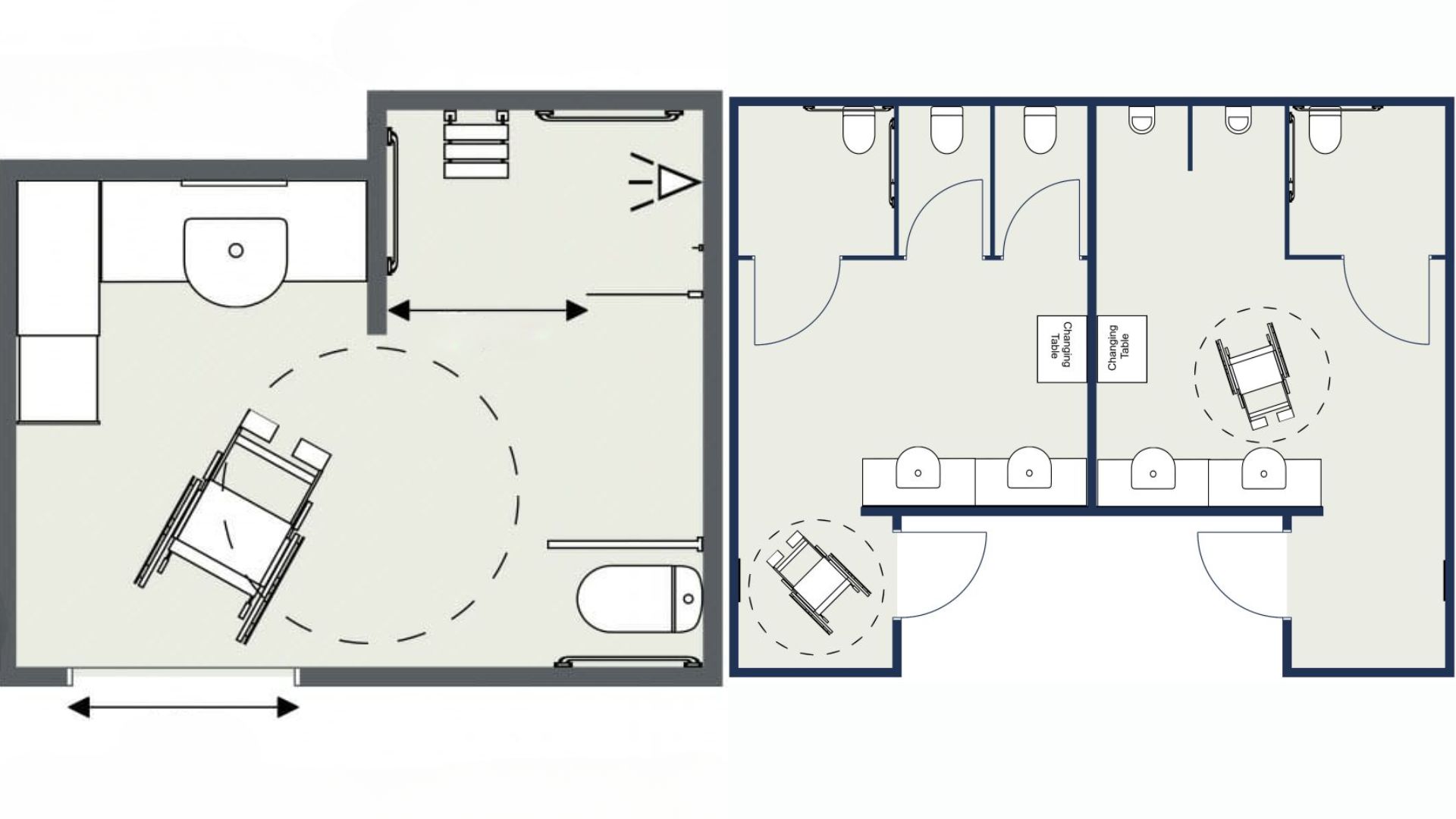
Key ADA Bathroom Layout Guidelines

Key ADA Bathroom Layout Guidelines

Making bathrooms accessible means following specific rules for doors, toilets, sinks, and showers. These guidelines help people in wheelchairs move around safely and comfortably.

1. Doorways and Entry

ADA restroom doors must be wide enough and easy to open for everyone. Having enough space makes getting in and out simple. The doorway should be at least 32 inches wide when open for wheelchair access.

You need 30 by 48 inches of clear floor space on both sides for maneuvering. Hardware should be easy to use with one hand and require no twisting motions. Door force must not exceed 5 pounds.

2. Toilet and Toilet Areas

Toilets must be easily accessible and usable for everyone, including individuals in wheelchairs or using walkers. Clear space helps with turning and transferring. Accessible toilets should be 17 to 19 inches high from the floor to the seat.

Toilet stalls should be 60 inches wide and 56 inches deep to accommodate wheelchair turning and transfers.

3. Sinks and Vanities

An accessible sink should allow someone in a wheelchair to roll up close and reach all elements. Faucet controls and mirrors also need special attention. The sink rim or counter must be no higher than 34 inches above the floor.

You need at least 27 inches of knee clearance underneath for wheelchairs to fit. Clear floor space of 30 inches wide by 48 inches deep is required in front. Faucets should be lever-operated or automatic.

4. Shower and Bathtub Areas

Showers and tubs should be roomy and safe to enter, with plenty of space and controls that are simple to reach. A roll-in shower should be at least 30 by 60 inches for wheelchair access.

Grab bars must be installed inside for support and safety. The shower seat should be 17 to 19 inches high for easy transfer. Shower controls and spray unit should be mounted no higher than 48 inches from the floor.

Additional Features for Accessibility

Additional Features for Accessibility

Extra details make bathrooms safer and easier for everyone to use. Grab bars, mirrors, dispensers, and signs all have special rules.

1. Grab Bars and Support Structures

ADA bathrooms need strong, well-placed grab bars for safety and support. Side, rear, and fold-down bars help people stay steady.

Grab bars must be mounted 33 to 36 inches above the floor on both side walls and behind toilets.

Each bar must support at least 250 pounds and be 1.25 to 1.5 inches thick for a good grip. Leave clear space all around the bars so they’re easy to grab and never blocked by other items.

2. Mirrors and Dispensers

Mirrors must be low enough for someone sitting in a wheelchair to see themselves easily. Dispensers should be within comfortable reach for everyone.

The bottom edge of mirrors should be no higher than 40 inches above the floor for wheelchair users.

Soap and paper towel dispensers must be between 15 and 48 inches above the floor for easy reach. Toilet paper dispensers should go 7 to 9 inches in front of the toilet and 15 to 48 inches off the ground.

3. Accessible Signage

Every accessible bathroom needs the International Symbol of Accessibility on the door. Signs should be clear and easy to read for everyone.

Signs should use raised letters and Braille for people who are blind or have low vision.

Mount signs on the latch side of the door, 48 to 60 inches from the floor. These rules help everyone find and use the restroom without confusion or difficulty.

ADA Compliant Bathroom Layout for Different Facilities

ADA Compliant Bathroom Layout for Different Facilities

Making bathrooms accessible for everyone means following ADA rules that help people with disabilities use them safely. These guidelines matter for home remodels and public spaces.

Doorways need 32 inches of width for wheelchairs. Bathrooms should have 60 inches of clear turning space. Grab bars near toilets and showers provide needed support.

Sinks can’t be higher than 34 inches. There must be 27 inches of knee space underneath for wheelchairs.

Public bathrooms need one large stall that’s 60 inches wide and 56 inches deep. These stalls must have side and rear grab bars.

Mirrors, soap dispensers, and fixtures should be placed where everyone can easily reach them. These simple changes make bathrooms work for all people.

ADA Bathroom Layout for Special Cases

ADA bathrooms need special features for different situations. Some restrooms require changes for families, children, or portable use.

  • Unisex or single-use bathrooms must have privacy latches and one toilet and sink. They require sufficient space for wheelchairs to turn around safely.
  • Children’s bathrooms need lower sinks and toilets. All fixtures must be set at heights that children can reach easily and safely.
  • At least 5% of portable bathrooms at public events or work sites must be accessible. These areas require clear signs and sufficient space for wheelchair access.

These changes help people of all ages and abilities use bathrooms safely. Good design makes everyone feel comfortable and welcome in any restroom.

ADA Bathroom Layout in Renovations and Alterations

When you renovate an existing bathroom, ADA rules say any changed element must meet accessibility standards. If you work in areas that people use most, you must also make the path to the restroom accessible.

Sometimes full compliance isn’t “technically feasible” if the building’s structure prevents big changes. You can’t remove main support beams, for example. In these cases, you must still make the bathroom as accessible as possible.

Common fixes include widening doors, installing grab bars, and lowering sinks. Moving partitions creates more room for wheelchairs.

Always measure first and plan carefully to avoid surprises during construction. The key is doing what you can within your building’s limits while following safety rules.

Common Design Mistakes to Avoid

ADA-compliant bathrooms help ensure that everyone feels welcome and safe. Many designers make simple mistakes that can be easily avoided.

  • Forgetting about the wheelchair turning space: Bathrooms need enough clear floor space for wheelchairs to turn around without hitting walls or fixtures.
  • Placing grab bars in the wrong spots: Grab bars must be positioned at the correct height and exact locations as required by building codes.
  • Making doorways too narrow: Bathroom doors should be wide enough to allow wheelchairs and mobility devices to pass through easily.
  • Installing sinks and mirrors too high: Sinks and mirrors should be placed low enough for people in wheelchairs to reach and use comfortably.

These small changes make bathrooms work better for everyone. Taking time to check these details early saves money and headaches later.

Summing It Up

Following ADA bathroom layout guidelines isn’t optional – it’s essential for creating truly inclusive spaces.

You protect your business from lawsuits while welcoming customers who might otherwise struggle to access your services.

Every person deserves to use a bathroom with confidence and comfort, regardless of their abilities. Smart ADA bathroom layout choices can seriously boost your property value and expand your customer base.

These changes also help elderly visitors, parents with strollers, and anyone with temporary injuries. You’re not just meeting legal requirements; you’re creating spaces that show respect for all users.

Want more tips on designing accessible, smart spaces? Check out other blogs for practical guides, layout ideas, and inspiration to make your home or business more inclusive.

Similar Posts

Leave a Reply

Your email address will not be published. Required fields are marked *